Marechal Juin
Retour sur nos projets

Marechal Juin

Transformation expresse : Du studio au 2 pièces !

Dans le cadre d’un projet de rénovation locative à Cannes, ce studio a fait l’objet d’une transformation complète, pensée pour optimiser chaque mètre carré tout en valorisant le charme existant de l’appartement. Certaines signatures de l’époque ont été préservées, à l’image du sol en marbre d’origine, typique des appartements des années 1970, qui apporte caractère et élégance à l’ensemble.

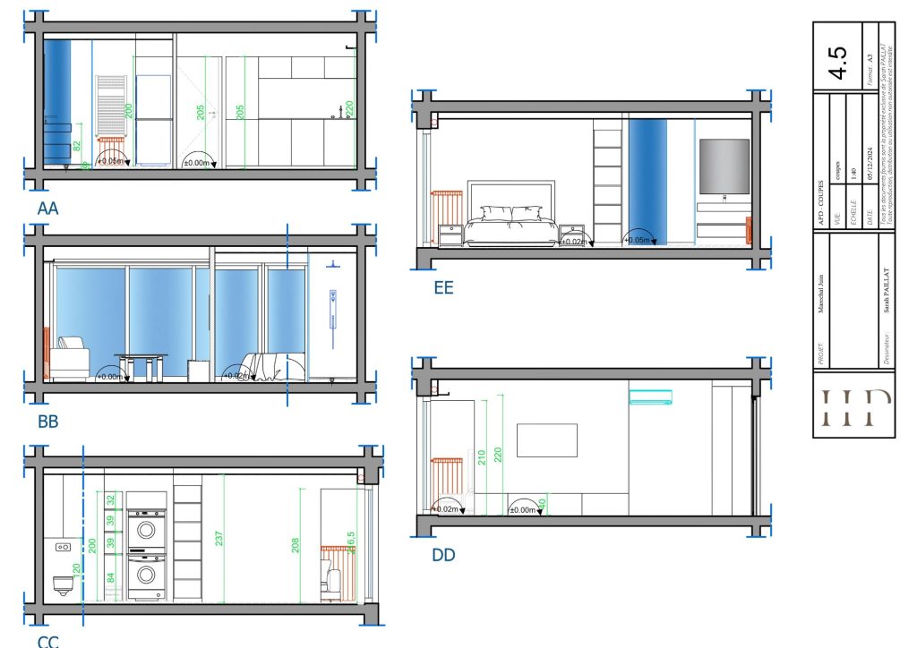
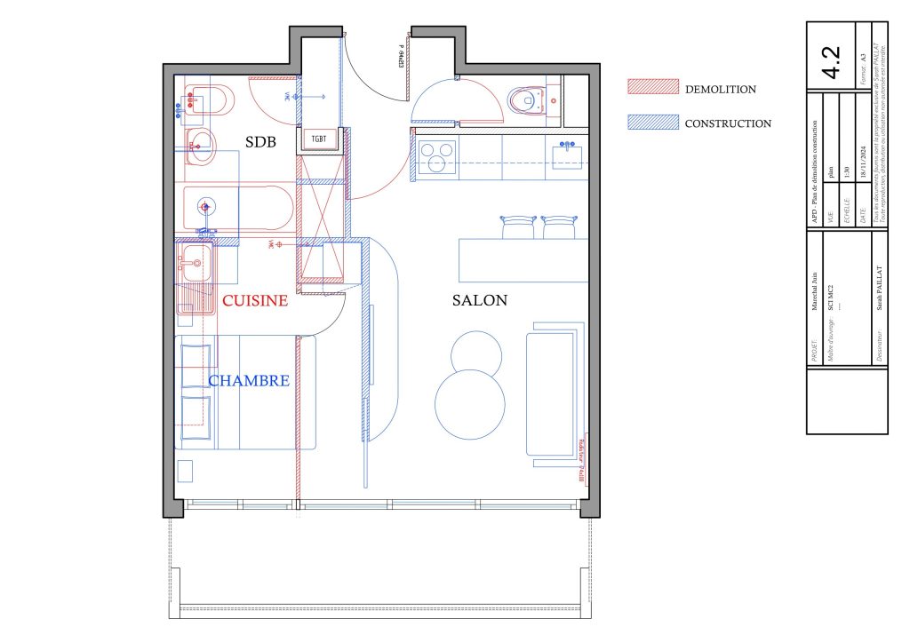
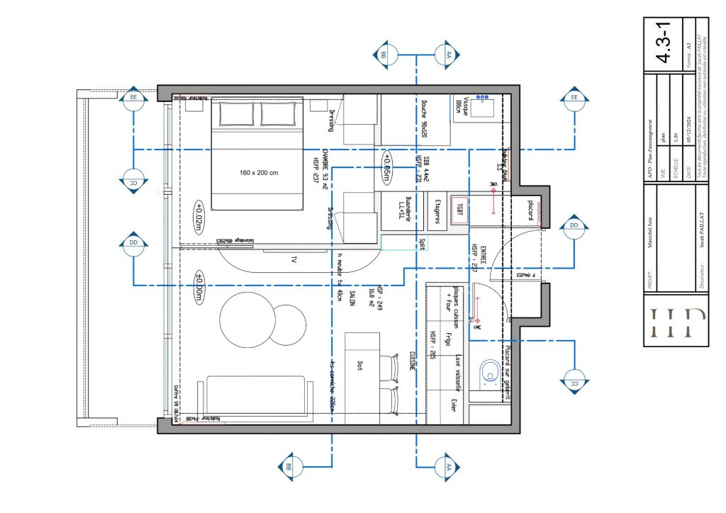
L’agencement a été entièrement repensé afin d’en faire un T2 : une véritable chambre a été créée avec sa salle de douche attenante, apportant confort et intimité. La cuisine a été déplacée dans la pièce de vie pour devenir une cuisine ouverte, conviviale et fonctionnelle, s’intégrant harmonieusement au salon.
Des rangements tels que placard d’entrée, niches et dressing ont été intégrés pour répondre aux besoins du quotidien tout en conservant une esthétique épurée.
La rénovation, menée dans un délai court, a su concilier efficacité et qualité.
Un projet où optimisation rime avec style, pour un bien locatif prêt à séduire le marché cannois.

  • Rénovation totale
  • Cannes (06)
  • < 55 K€
  • Mars 2025